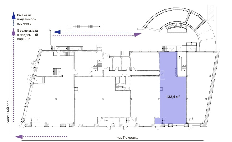
133.4 кв.м. в Покровка, 8, блок 133.4 кв. м
Класс D+
г. Москва, Покровка ул, 8
| Этаж | 1 |
| Отдельный вход | да |
| Арендаторы | ВкусВилл |
| Общая площадь, кв.м. | 133 |
| Этажность | 2 |
| Вентиляция | Приточно-вытяжная |
| Паркинг | Городская, Гостевая |
| Состояние помещения | Типовая |
| Э/энергия включена | нет |
| Район города | Басманный |
| Тип предложения | Аренда |
| Арендаторы | ВкусВилл |
| Общая площадь, кв.м. | 133 |
| Этажность | 2 |
| Вентиляция | Приточно-вытяжная |
| Паркинг | Гостевая |
Предлагается в аренду торговое помещение в центре Москвы
- ЦАО, "Басманный район"
- Исторический центр
- Помещение с отделкой после арендатора
- 1 этаж
- Площадь помещения - 133,4 м2
- Выделенная электрическая мощность - 47 кВт
- Отдельный вход
- Высокий пешеходный и автомобильный трафик
Оперативный показ и быстрый выход на сделку
Данное предложение не является офертой, указанные условия могут быть изменены
Заметили ошибку? Выделите текст и нажмите CTRL+ENTER
|
|
||
Запросить информацию
Ваша заявка успешно отправлена.
Мы свяжемся с Вами в ближайшее время.
Что-то пошло не так. Попробуйте еще раз или свяжитесь с нами по телефону 748-22-38
