300 кв.м. в Москва, Мясницкая, 11, блок 300 кв. м
Класс B
г. Москва, Мясницкая ул, 11
| Этаж | 1 |
| Ставка включает OpEx | нет |
| Отдельный вход | да |
| Арендаторы | оушен баскет |
| Общая площадь, кв.м. | 300 |
| Этажность | 5 |
| Вентиляция | Приточно-вытяжная |
| Паркинг | Городская |
| Состояние помещения | Типовая |
| К/У включены | нет |
| Э/энергия включена | нет |
| Район города | Красносельский |
| Тип предложения | Аренда |
| Арендаторы | оушен баскет |
| Общая площадь, кв.м. | 300 |
| Этажность | 5 |
| Вентиляция | Приточно-вытяжная |
| Паркинг | Городская |
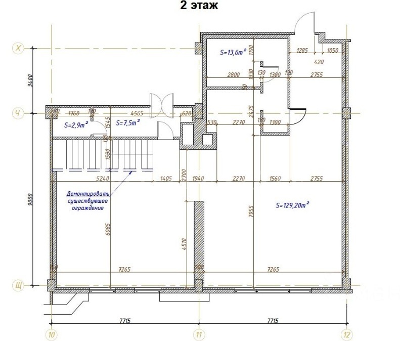
Аренда помещения под ресторан, все коммуникации под общепит, вытяжка, электричество 125 кВт. Общая площадь 300,6 кв.м (1й этаж 141,6 кв.м, 2й этаж 159 кв.м.) Отдельный вход, перва линия ул. Мясницкая, летняя веранда, широкий тротуар.
100 м2
от 84 000 руб./м2/год
Данное предложение не является офертой, указанные условия могут быть изменены
Заметили ошибку? Выделите текст и нажмите CTRL+ENTER
|
|
||
Запросить информацию
Ваша заявка успешно отправлена.
Мы свяжемся с Вами в ближайшее время.
Что-то пошло не так. Попробуйте еще раз или свяжитесь с нами по телефону 748-22-38
