581.5 кв.м. в Аренда помещения Садовая-Самотечная, 2/12, блок 581.5 кв. м
Класс B
г. Москва, Садовая-Самотёчная ул, 2/12
| Этаж | 1 |
| Отдельный вход | да |
| Общая площадь, кв.м. | 582 |
| Вентиляция | Приточно-вытяжная |
| Состояние помещения | Типовая |
| К/У включены | нет |
| Э/энергия включена | нет |
| Тип предложения | Аренда |
| Общая площадь, кв.м. | 582 |
| Вентиляция | Приточно-вытяжная |
Помещение на первой линии Садового кольца, красивые витрины.
Два отдельных входа. Зальная планировка.
Высота потолков 4,6 м
Электричество 140 кВт
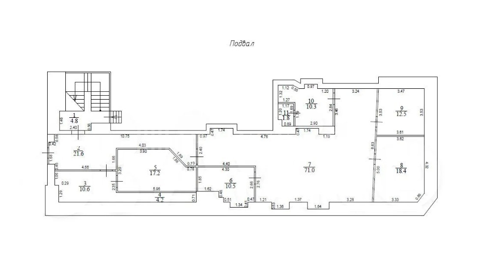
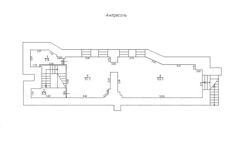
Общая площадь 581,5 кв.м (1 этаж 290,5 м2., антресоль 97,7 м2., подвал 278,8 м2)
Данное предложение не является офертой, указанные условия могут быть изменены
Заметили ошибку? Выделите текст и нажмите CTRL+ENTER
|
|
||
Запросить информацию
Ваша заявка успешно отправлена.
Мы свяжемся с Вами в ближайшее время.
Что-то пошло не так. Попробуйте еще раз или свяжитесь с нами по телефону 748-22-38
