719 кв.м. в ОСЗ 720 кв.м и ЗУ на наб. Макарова, блок 719 кв. м
Класс B+
г. Санкт-Петербург, КИМа пр-кт, 19литераИ
| Этаж | 1-2 |
| Отдельный вход | да |
| Налоги | УСН |
| Период ввода | Февраль |
| Описание парковки | Наземная на 30 машиномест |
| Высота потолков, м | 4 |
| Ставка включает OpEx | нет |
| Площадь типового этажа | 350 |
| Год постройки | 2 026 |
| Общая площадь, кв.м. | 720 |
| Этажность | 2 |
| Лифты в здании | нет |
| Вентиляция | Приточно-вытяжная |
| Паркинг | Наземная |
| Планировка | смешанная, Открытая |
| Возможна перепланировка | да |
| Состояние помещения | Под арендатора |
| Интернет включен | нет |
| К/У включены | нет |
| Э/энергия включена | нет |
| Уборка | нет |
| До метро минут на транспорте | 6 |
| До метро минут пешком | 18 |
| Район города | Василеостровский |
| Тип объекта недвижимости | Бизнес центр |
| Тип предложения | Продажа |
| Период ввода | Февраль |
| Высота потолков, м | 4 |
| Описание парковки | Наземная на 30 машиномест |
| Площадь типового этажа | 350 |
| Год постройки | 2026 |
| Общая площадь, кв.м. | 720 |
| Этажность | 2 |
| Лифты в здании | нет |
| Вентиляция | Приточно-вытяжная |
| Паркинг | Наземная |
| Возможна перепланировка | да |
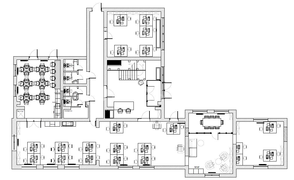
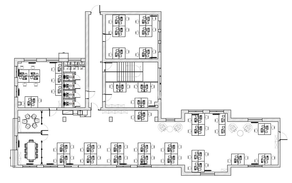
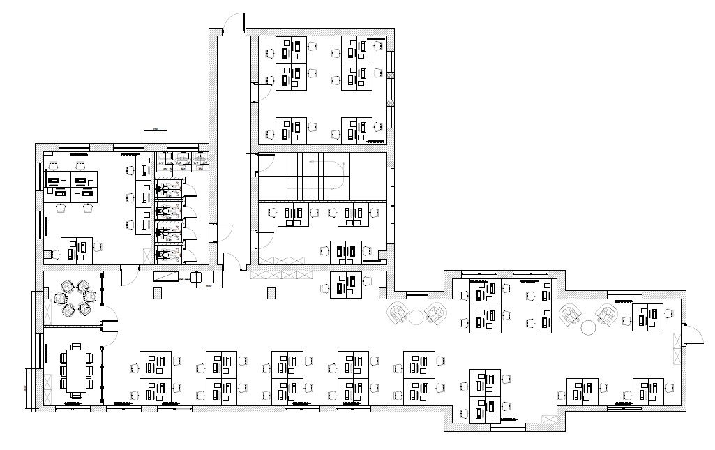
Продажа отдельностоящего офисного здания 719 кв.м и права аренды земельного участка на наб. Макарова.
В объекте завершаются ремонтные работы, готов фасад, остекление, благоустроена территория и предусмотрена парковка на 30 машиномест. Продолжаются черновые отделочные работы в помещениях. Возможно выполнение отделки по запросу Покупателя / Арендатора.

Ваша заявка отправлена и будет обработана в ближайшее время.
Что-то пошло не так. Попробуйте еще раз или свяжитесь с нами по телефону
371 – 1790 м2
от 101 256 руб./м2/год
Мы займемся этим проектом:
Вы получите все услуги от одной компании.
Данное предложение не является офертой, указанные условия могут быть изменены
Заметили ошибку? Выделите текст и нажмите CTRL+ENTER
|
|
||
Запросить информацию
Ваша заявка успешно отправлена.
Мы свяжемся с Вами в ближайшее время.
Что-то пошло не так. Попробуйте еще раз или свяжитесь с нами по телефону 748-22-38
