146 кв.м. в ЖК Ярославский квартал, Мытищи, блок 146 кв. м
Класс B
г. Мытищи, Ярославское ш, 116А
| Этаж | 1 |
| Отдельный вход | да |
| Состояние помещения | Типовая |
| К/У включены | нет |
| Э/энергия включена | нет |
| Тип предложения | Продажа |
| Арендаторы | Магнит |
| Общая площадь, кв.м. | 146.00 |
| Вентиляция | Приточно-вытяжная |
| Паркинг | Городская |
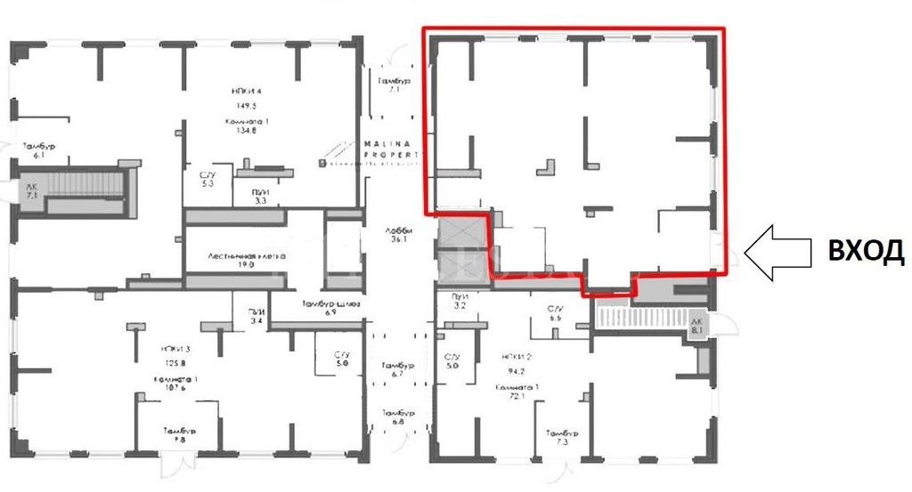
Продажа торгового помещения с арендатором Магнит, в ЖК Ярославский Квартал, корпус 1.2. Первый этаж, отдельный вход, свободная планировка, электричество 35 кВт. Арендная плата 423 980 руб. в месяц. Срок сдачи дома 3й квартал 2025 года.
Данное предложение не является офертой, указанные условия могут быть изменены
Заметили ошибку? Выделите текст и нажмите CTRL+ENTER
|
|
||
Запросить информацию
Ваша заявка успешно отправлена.
Мы свяжемся с Вами в ближайшее время.
Что-то пошло не так. Попробуйте еще раз или свяжитесь с нами по телефону 748-22-38
