278.6 кв.м. в Офис на ул. Типанова, блок 278.6 кв. м
Класс B
г. Санкт-Петербург, Типанова ул, 19
| Этаж | 1 |
| Отдельный вход | да |
| Налоги | УСН |
| Состояние помещения | Типовая |
| Э/энергия включена | да |
| Тип предложения | Продажа |
| Высота потолков, м | 3.70 |
| Арендаторы | швейная мастерская |
| Общая площадь, кв.м. | 278.60 |
| Вентиляция | есть, Приточно-вытяжная |
| Паркинг | Наземная |
| Планировка | Кабинетная |
| Возможна перепланировка | да |
| Выделенная электрическая мощность, кВт | 34 |
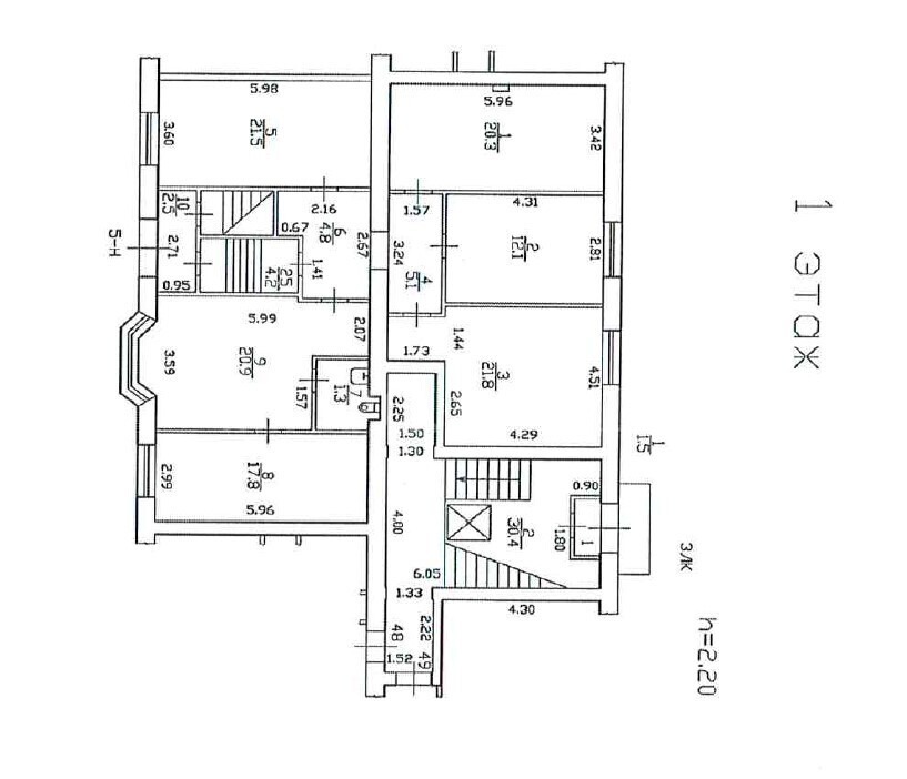
Продажа нежилого помещения площадью 278 м2
Помещение сдано в аренду под щвейную мастерскую, ранее использовалось как офис
Расположено на первом этаже жилого дома
Электрическая мощность 34 кВт
Приточно-вытяжная вентиляция
Кондиционирование
Охранная и пожарная сигнализации, видеонаблюдение
Интернет, телефония
Вход с ул. Типанова и со двора
513 м2
от 155 915 руб./м2/мес
254 м2
от 236 220 руб./м2/мес
513 м2
от 155 915 руб./м2/мес
254 м2
от 236 220 руб./м2/мес
Данное предложение не является офертой, указанные условия могут быть изменены
Заметили ошибку? Выделите текст и нажмите CTRL+ENTER
|
|
||
Запросить информацию
Ваша заявка успешно отправлена.
Мы свяжемся с Вами в ближайшее время.
Что-то пошло не так. Попробуйте еще раз или свяжитесь с нами по телефону 748-22-38
