Бизнес-центр Лада
Класс B+
г. Санкт-Петербург, Энергетиков пр-кт, 3
В объекте нет свободных площадей. Но мы можем найти для вас альтернативный вариант по Вашему запросу. Просто напишите нам Ваши требования на почту : info@ipg-estate.ru
| Ставка включает OpEx | да |
| Налоги | НДС |
| Интернет включен | нет |
| К/У включены | нет |
| Э/энергия включена | нет |
| Уборка | нет |
| НДС | Включая НДС |
| Кафе для арендаторов | да |
| Отдельный вход | да |
| Описание парковки | Наземная парковка во дворе - 150 м/м, стоимость - 4000 руб./м/м/мес. |
| Тип объекта недвижимости | Бизнес центр |
| Высота потолков, м | 3 |
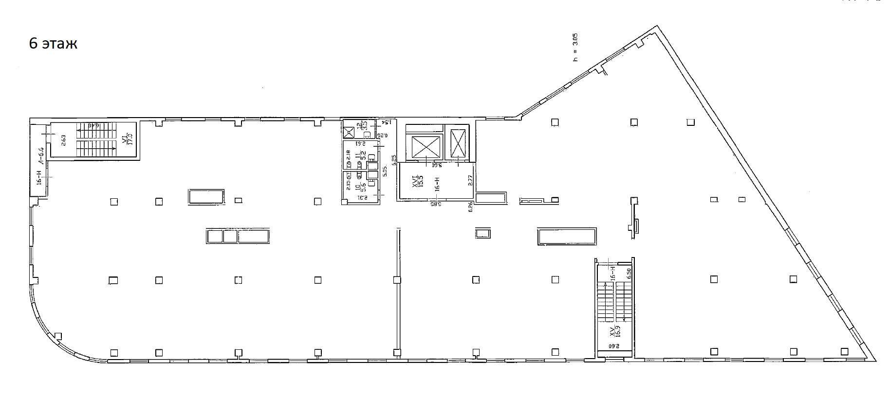
| Площадь типового этажа | 950 |
| Год постройки | 2015 |
| Общая площадь, кв.м. | 9 996 |
| Этажность | 10 |
| Лифты в здании | да |
| Вентиляция | приточно-вытяжная |
| Кондиционирование | мультизональная VRF система |
| Паркинг | Подземная |
| Планировка | смешанная |
| Возможна перепланировка | да |
| Кол-во мест паркинга | 150 |
| Цена парковки в месяц, руб. | 4 000 |
| Состояние помещения | Черновая |
| Пожарная безопасность | да |

Ваша заявка отправлена и будет обработана в ближайшее время.
Что-то пошло не так. Попробуйте еще раз или свяжитесь с нами по телефону
371 – 1790 м2
от 101 256 руб./м2/год
Мы займемся этим проектом:
Вы получите все услуги от одной компании.
Данное предложение не является офертой, указанные условия могут быть изменены
Заметили ошибку? Выделите текст и нажмите CTRL+ENTER
|
|
||
Запросить информацию
Ваша заявка успешно отправлена.
Мы свяжемся с Вами в ближайшее время.
Что-то пошло не так. Попробуйте еще раз или свяжитесь с нами по телефону 748-22-38
