694 кв.м. в Бизнес-центр Державинский 5, блок 694 кв. м
Класс B+
г. Санкт-Петербург, Державинский пер, 5
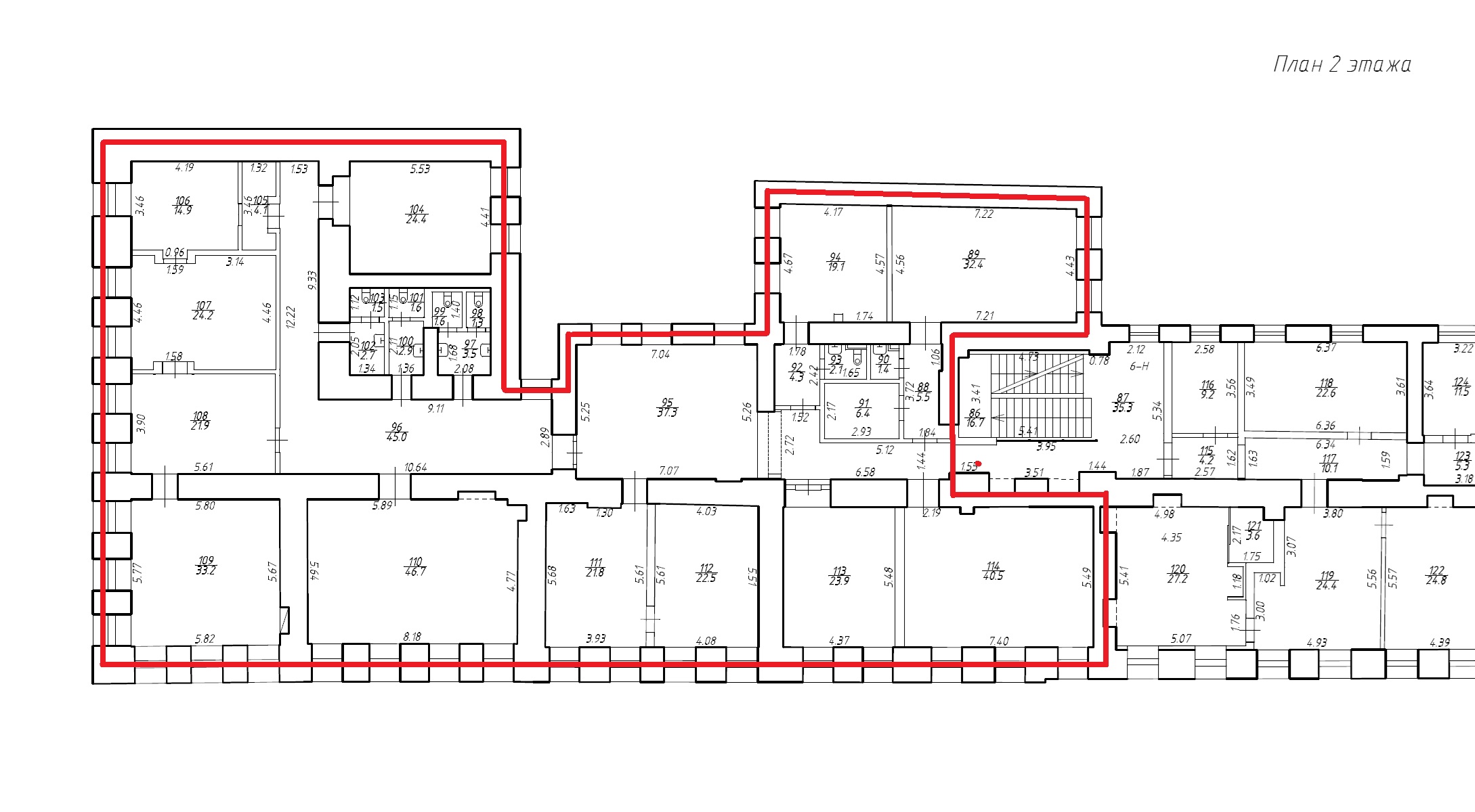
| Этаж | 2 |
| Год постройки | 1 860 |
| Состояние помещения | Типовая |
| С НДС | нет |
| К/У включены | да |
| Э/энергия включена | нет |
| Налоги | УСН |
| Высота потолков, м | 3.45 |
| Описание парковки | Наземная парковка на 70 машиномест - 6000 руб./место/месяц |
| Тип объекта недвижимости | Бизнес центр |
| Тип предложения | Аренда |
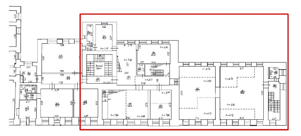
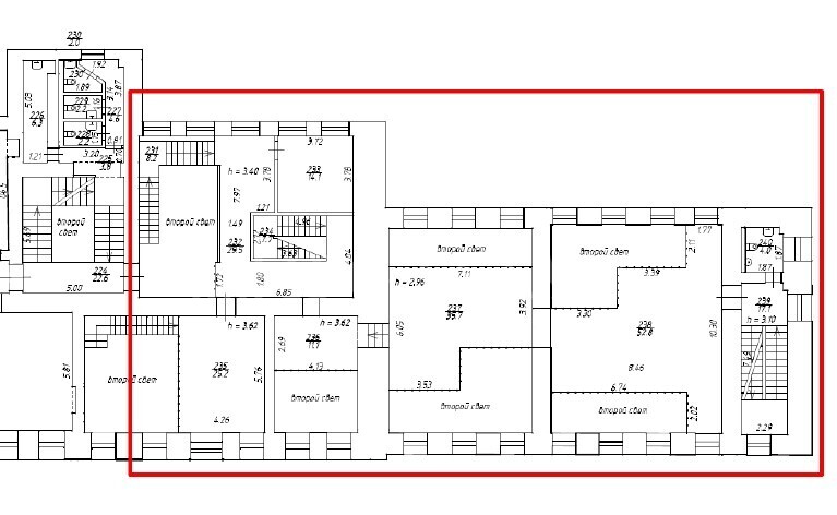
| Площадь типового этажа | 1486.60 |
| Год постройки | 1860, 2019 |
| Общая площадь, кв.м. | 9649.00 |
| Этажность | 4 |
| Вентиляция | приточно-вытяжная |
| Паркинг | Наземная |
| Планировка | смешанная |
Предлагаем в аренду помещения в бизнес-центре "Державинский, 5" от собственника объекта. Офис планируется к освобождению с 20 декабря.
Транспортная инфраструктура:
• Объект располагается в шаговой доступности от ст. м. "Технологический институт".
Характеристики помещения:
• Планировка: смешанная.
• Отделка помещения: лофт.
• Телекоммуникации: интернет, wi-fi.
• Вентиляция: приточно-вытяжная.
Технические характеристики бизнес-центра:
• Класс объекта: B+.
• Общая площадь: 9600 кв.м.
• Этажность: 4
• Наличие парковки: наземная охраняемая
Инфраструктура:
• В шаговой доступности располагаются продуктовые магазины, кафе и рестораны.
Арендная ставка и коммерческие условия:
• НДС 5% включен
• Арендная ставка включает коммунальные платежи, кроме электричества, и уборку
• Вы подписываете договор напрямую с собственников помещения.
• Без комиссии. Отсутствуют проценты и надбавки.

Ваша заявка отправлена и будет обработана в ближайшее время.
Что-то пошло не так. Попробуйте еще раз или свяжитесь с нами по телефону
164 м2
от 1 900 руб./м2/мес
61 – 81 м2
от 2 400 руб./м2/мес
252 – 374 м2
6966 м2
1455 м2
от 2 500 руб./м2/мес
259 – 4180 м2
от 2 500 руб./м2/мес
700 – 18700 м2
от 2 400 руб./м2/мес
Мы займемся этим проектом:
Вы получите все услуги от одной компании.
Данное предложение не является офертой, указанные условия могут быть изменены
Заметили ошибку? Выделите текст и нажмите CTRL+ENTER
|
|
||
Запросить информацию
Ваша заявка успешно отправлена.
Мы свяжемся с Вами в ближайшее время.
Что-то пошло не так. Попробуйте еще раз или свяжитесь с нами по телефону 748-22-38
