Array

Все услуги

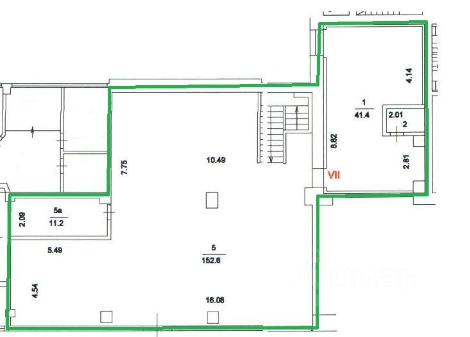
388 кв.м. в Москва, Комсомольский просп. 15, блок 388 кв. м

Класс B

г. Москва, Комсомольский пр-кт, 15

388 кв.м. в Москва, Комсомольский просп. 15

г. Москва, Комсомольский пр-кт, 15

Характеристики помещения

Этаж 1
Отдельный вход да
Материал стен Сэндвич-панели
Общая площадь, кв.м. 388
Вентиляция Приточно-вытяжная
Состояние помещения Типовая
К/У включены нет
Э/энергия включена нет

Общие характеристики

Материал стен Сэндвич-панели
Общая площадь, кв.м. 388
Вентиляция Приточно-вытяжная

Об объекте

Аренда помещения на первой линии Комсомольского проспекта, в районе метро Фрунзенская, пристройка к жилому дому, общая площадь помещения 388 кв.м (первый этаж 207,7, подвал 170,8 кв.м). Отдельный вход с улицы, большие витрины. Рекламная вывеска на фасаде. Интенсивный пешеходный и автомобильный трафик. Отличная видимость помещения.

Похожие объекты по цене

  • Цена

Данное предложение не является офертой, указанные условия могут быть изменены

Заметили ошибку? Выделите текст и нажмите CTRL+ENTER

Кликните, чтобы оставить заявку на данный блок
Этот блок сейчас просматривают 3 пользователя
Запросы (0)

ИзбранноеСмотреть на карте

Смотреть на карте

Закрыть

Этот сайт использует куки-файлы и другие технологии, чтобы помочь вам в навигации, а также предоставить лучший пользовательский опыт, анализировать использование наших продуктов и услуг, повысить качество рекламных и маркетинговых активностей.