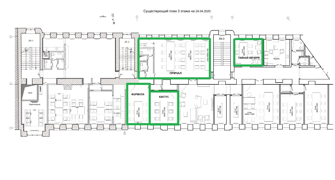
Блок на 44 рабочих мест с переговорной в коворкинге "Ясная поляна"
Класс B+
г. Санкт-Петербург, Льва Толстого ул, 1_3 А
| Этаж | 3 |
| Отдельный вход | нет |
| Кол-во р.м. в блоке | 38 |
| Цена за рабочее место | 32 000 |
| Состояние помещения | Готовый офис с мебелью |
| К/У включены | да |
| Э/энергия включена | да |
| Налоги | УСН |
| Тип объекта недвижимости | Коворкинг |
| Тип предложения | Аренда |
| Общая площадь, кв.м. | 6200.00 |
| Этажность | 3 |
| Вентиляция | Приточно-вытяжная |
| Паркинг | наземная |
| Планировка | смешанная |
❏ Авторский дизайн офисного пространства;
❏ Эксклюзивная мебель и декор (в том числе собственного производства);
❏ Отдельная зона для кофе-поинта;
❏ Ежедневный профессиональный клининг;
❏ Возможность размещения вашей технической инфраструктуры (серверы и т.д.);
❏ Доступ в офис будет только у ваших сотрудников;
❏ 5 кофеен и 7 ресторанов непосредственно в том же здании, ещё более 32 заведений в радиусе 100 м;
❏ Пять минут пешком до Ботанического сада, набережной реки Карповки, нескольких театров, концертных площадок и многого другого;
❏ Офис в центре города в восстановленном особняке начала 20 века (доходный дом В. М. Корзинина);
❏ 2 минуты пешком от метро «Петроградская».

Ваша заявка отправлена и будет обработана в ближайшее время.
Что-то пошло не так. Попробуйте еще раз или свяжитесь с нами по телефону
Мы займемся этим проектом:
Вы получите все услуги от одной компании.
Данное предложение не является офертой, указанные условия могут быть изменены
Заметили ошибку? Выделите текст и нажмите CTRL+ENTER
|
|
||
Запросить информацию
Ваша заявка успешно отправлена.
Мы свяжемся с Вами в ближайшее время.
Что-то пошло не так. Попробуйте еще раз или свяжитесь с нами по телефону 748-22-38
