5992 кв.м. в Бизнес-центр Попова, 38, блок 5992 кв. м
Класс A
г. Санкт-Петербург, Профессора Попова ул, 38
| Этаж | 1-5 |
| Описание парковки | Подземный паркинг на 54 машиноместа, наземная гостевая парковка на 30 мест |
| Период ввода | Июнь |
| Высота потолков, м | 4 |
| Отдельный вход | да |
| Площадь типового этажа | 1 200 |
| Год постройки | 2 028 |
| Общая площадь, кв.м. | 5 992 |
| Лифты в здании | 4 |
| Вентиляция | Приточно-вытяжная |
| Кондиционирование | предусмотрена установка |
| Планировка | open-space |
| Возможна перепланировка | да |
| Состояние помещения | Без отделки |
| Э/энергия включена | нет |
| До метро минут пешком | 15 |
| Район города | Петроградский |
| Период ввода | Июнь |
| Высота потолков, м | 4 |
| Описание парковки | Подземный паркинг на 54 машиноместа, наземная гостевая парковка на 30 мест |
| Тип объекта недвижимости | Бизнес центр |
| Тип предложения | Продажа |
| Площадь типового этажа | 1 200 |
| Год постройки | 2028 |
| Общая площадь, кв.м. | 5 992 |
| Лифты в здании | 4 |
| Вентиляция | Приточно-вытяжная |
| Кондиционирование | предусмотрена установка |
| Возможна перепланировка | да |
Новый строящийся бизнес-центр класса А+ в Петроградском районе.
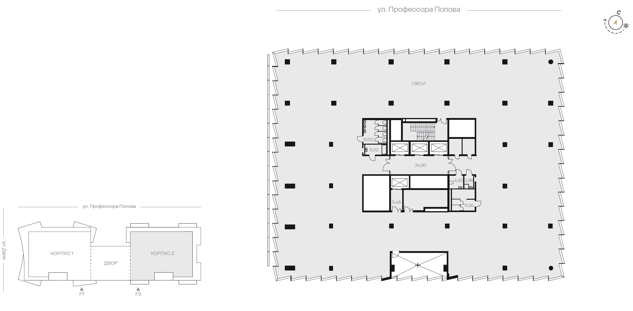
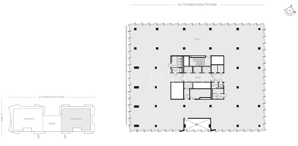
Адрес: ул. Профессора Попова д.38
Шаговая доступность до станций метро "Петроградская" и "Чкаловская"
Престижная локация для размещения штаб-квартиры компании и надежный инвестиционный актив в самом востребованном в сфере офисной недвижимости районе Санкт-Петербурга.
Общая информация:
- Новое строительство - срок ввода в эксплуатацию 1 кв. 2028г.
- 5 этаже, кроме того подземный этаж
- Площадь корпуса - 5 992 кв.м
- Площадь террас на 4 и 5 этажах - 359 кв.м
- высота потолков типового этажа - 3,75м
- высота потолка лобби - 5,25 м
- 4 лифта
- подземный паркинг на 54 машиноместа с возможностью увеличения до 81 места при условии механизации;
- доступ на лифте в офис по принципу "сухие ноги";
- зарядка для электромашин;
Коммерческие условия:
Стоимость объекта - 2 454 409 000 руб. (410 000 руб/кв.м).
Возможна рассрочка платежа до окончания строительства, первый взнос не менее 20%.
Дополнительно можно приобрести машиноместа в подземном паркинге.
Общая стоимость машиномест - 189 000 000 руб.
Продажа осуществляется только юридическим лицам по инвестиционному договору.

Ваша заявка отправлена и будет обработана в ближайшее время.
Что-то пошло не так. Попробуйте еще раз или свяжитесь с нами по телефону
371 – 1790 м2
от 101 256 руб./м2/год
Мы займемся этим проектом:
Вы получите все услуги от одной компании.
Данное предложение не является офертой, указанные условия могут быть изменены
Заметили ошибку? Выделите текст и нажмите CTRL+ENTER
|
|
||
Запросить информацию
Ваша заявка успешно отправлена.
Мы свяжемся с Вами в ближайшее время.
Что-то пошло не так. Попробуйте еще раз или свяжитесь с нами по телефону 748-22-38
