Бизнес-центр 11-я Красноармейская, 11
Класс B+
г. Санкт-Петербург, 11-я Красноармейская ул, 11
В объекте нет свободных площадей. Но мы можем найти для вас альтернативный вариант по Вашему запросу. Просто напишите нам Ваши требования на почту : info@ipg-estate.ru
| Высота потолков, м | 3.30 |
| Тип объекта недвижимости | Бизнес центр |
| Тип предложения | Аренда |
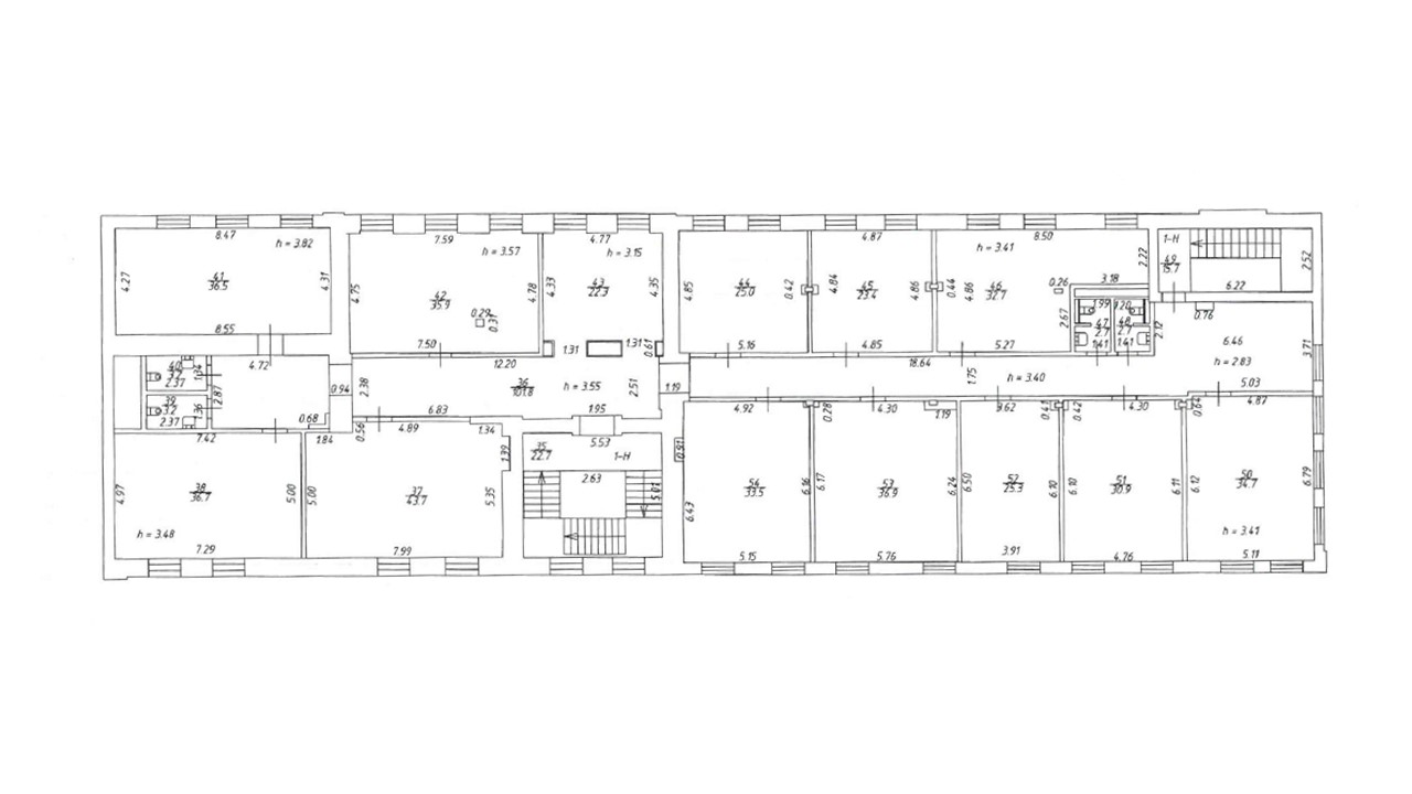
| Площадь типового этажа | 1700.00, 560.00 |
| Этажность | 3 |
| Вентиляция | Естественная |
| Кондиционирование | Зональное |
| Паркинг | Городская |

Ваша заявка отправлена и будет обработана в ближайшее время.
Что-то пошло не так. Попробуйте еще раз или свяжитесь с нами по телефону
802 м2
от 28 080 руб./м2/год
371 – 1790 м2
от 101 256 руб./м2/год
Мы займемся этим проектом:
Вы получите все услуги от одной компании.
Данное предложение не является офертой, указанные условия могут быть изменены
Заметили ошибку? Выделите текст и нажмите CTRL+ENTER
|
|
||
Запросить информацию
Ваша заявка успешно отправлена.
Мы свяжемся с Вами в ближайшее время.
Что-то пошло не так. Попробуйте еще раз или свяжитесь с нами по телефону 748-22-38
