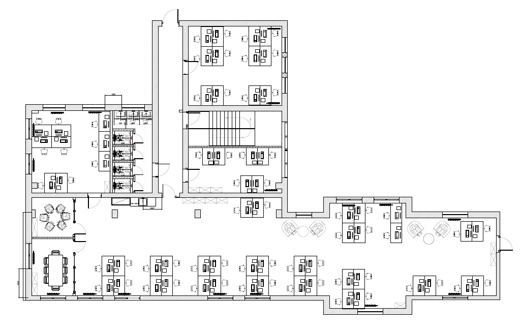
ОСЗ 720 кв.м и ЗУ на наб. Макарова
Класс B+
г. Санкт-Петербург, КИМа пр-кт, 19литераИ
| Период ввода | Февраль |
| Высота потолков, м | 3.50 |
| Описание парковки | Наземная на 30 машиномест |
| Тип объекта недвижимости | Бизнес центр |
| Тип предложения | Продажа |
| Площадь типового этажа | 350.00 |
| Год постройки | 2026 |
| Общая площадь, кв.м. | 720.00 |
| Этажность | 6, 2 |
| Вентиляция | Приточно-вытяжная |
| Паркинг | Наземная |
| Возможна перепланировка | да |

Ваша заявка отправлена и будет обработана в ближайшее время.
Что-то пошло не так. Попробуйте еще раз или свяжитесь с нами по телефону
802 м2
от 28 080 руб./м2/год
371 – 1790 м2
от 101 256 руб./м2/год
Мы займемся этим проектом:
Вы получите все услуги от одной компании.
Данное предложение не является офертой, указанные условия могут быть изменены
Заметили ошибку? Выделите текст и нажмите CTRL+ENTER
|
|
||
Запросить информацию
Ваша заявка успешно отправлена.
Мы свяжемся с Вами в ближайшее время.
Что-то пошло не так. Попробуйте еще раз или свяжитесь с нами по телефону 748-22-38
